BARBOTINE
Programme : Rénovation d’une maison et Réalisation d’un atelier de céramique
Localisation : Paris 75018
Maîtrise d'ouvrage : Privé
Surface : 100m²
Coût travaux : 80 000 € HT
Statut : Livré
Images : Mesnil Studio
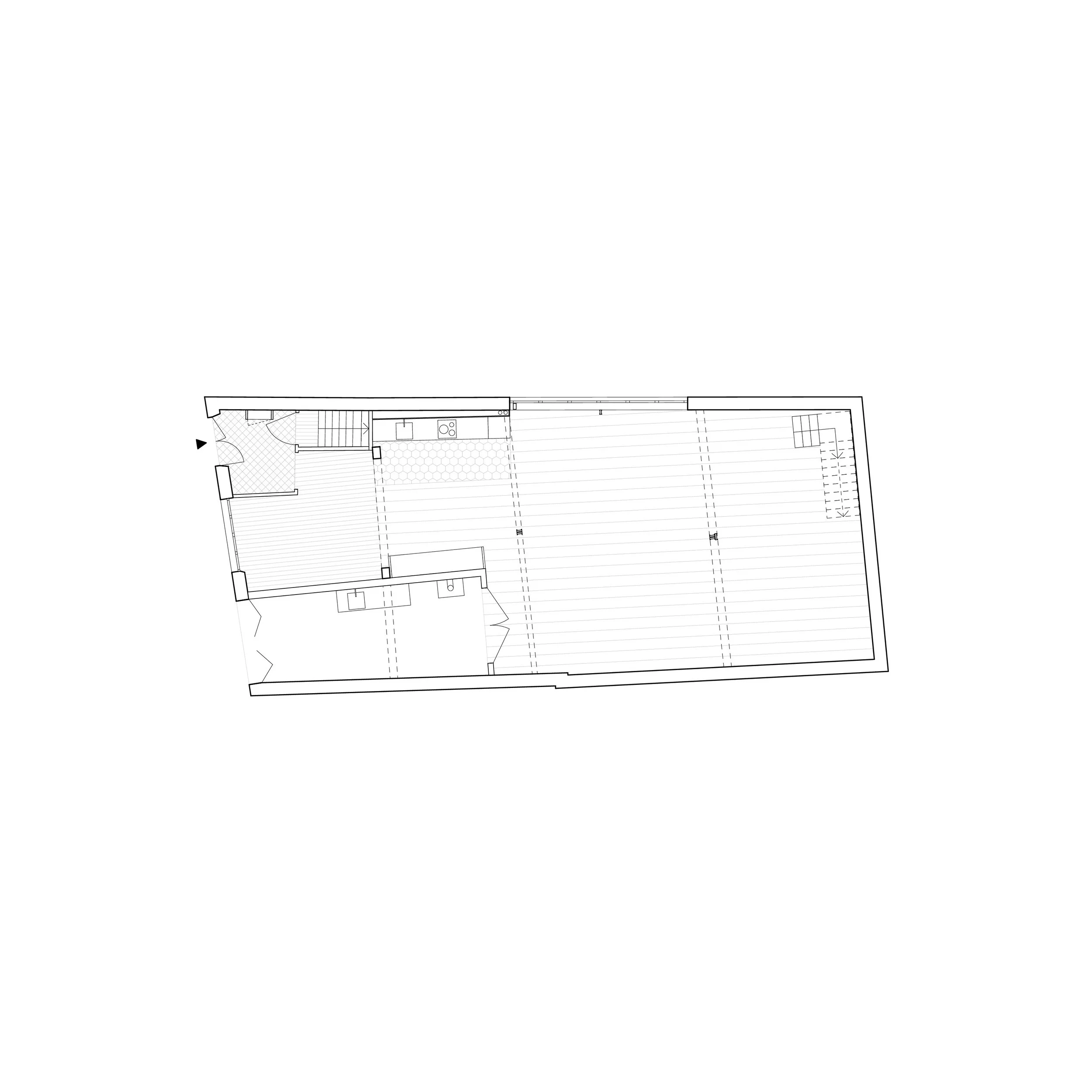
Cette maison parisienne est chargée d’histoire, elle commence par sa construction à la fin du XIXème siècle, à laquelle sera ajouté un atelier de menuiserie sous une large verrière dans les années 30. Par la suite, plusieurs familles s’y succèdent, chacune apportant sa couche supplémentaire de travaux.
Aujourd’hui, l’édifice porte les marques de ces strates, toutes empreintes de leur propre caractère, répondant à des usages spécifiques, parfois oubliés, ayant évolué au fil des années. L’objectif ici est double : installer un atelier de céramique avec pignon sur rue et conserver une pièce à vivre généreuse pour la famille.
A l’instar de la barbotine employée en poterie - un mélange de terre et d’eau utile à l’assemblage de plusieurs pièces - le nouvel atelier épouse le tissu structurel existant de la maison, modelant une forme organique courbe toute de chaux vêtue. Côté maison, une première bande technique se niche sous l’escalier montant vers l’étage abritant les pièces de nuit et une seconde accueillant la cuisine se love sous les marches menant au bureau. En repoussant les espaces servants en périphérie de la pièce à vivre, l’intervention donne la part belle à la verrière, magnifiant le grain de la courbe du voile de l’atelier animé par le parcours du soleil.

